 
			 
				TORRACCIA
PIENA PROPRIETA'
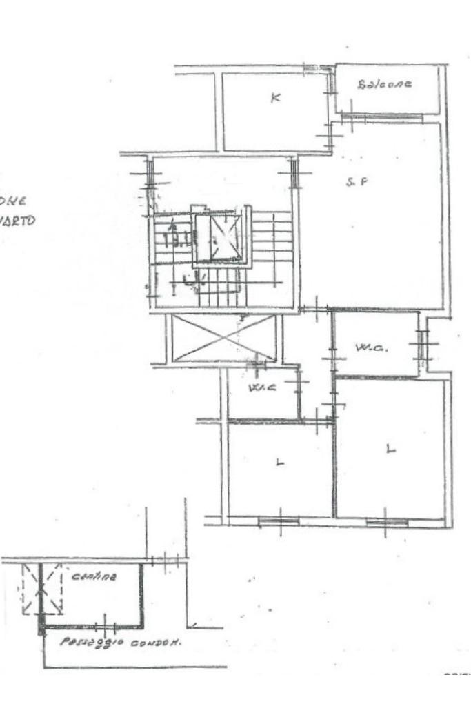
Al centro del quartiere, adiacente tutti i principali servizi, disponiamo di un ampio e comodo trilocale, posto al quarto ed ultimo piano con ascensore. L'immobile, con doppia esposizione, è composto da ampio salone con accesso sul balcone, cucina separata, disimpegno che conduce alla zona notte, 1 camera matrimoniale, 1 camera singola, 2 bagni con finestra (uno con doccia ed uno con vasca).
La soluzione, dotata di riscaldamento autonomo, climatizzatori e infissi legno doppio-vetro, dispone anche di un posto auto coperto (con ascensore direttamente al piano), e una comoda cantina.
Contattaci per maggiori informazioni e per prenotare una visita!
Ti interessa visionare l'immobile?