 
			 
				TORRACCIA
PIENA PROPRIETA'
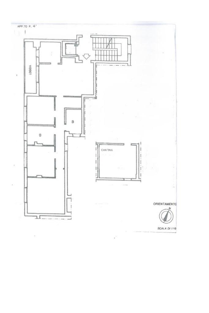
Situato al 4° ed ultimo piano di un edificio in cortina costruito nel 1994, l'immobile si estende su una superficie di 92 mq, garantendo ampi spazi per ogni esigenza. La disposizione interna è composta da un ampio soggiorno con accesso sul balcone con esposizione sud-ovest, cucina separata, un comodo ripostiglio nel disimpegno, tre camere da letto, due bagni con finestra, uno con box doccia ed uno con vasca. L'immobile è dotato di infissi in legno doppio-vetro, grate e condizionatori.
Completano la proprietà un posto auto coperto e una cantina di ampia metratura.
Contattaci per maggiori informazioni e per prenotare una visita!
Ti interessa visionare l'immobile?